NEWLY LISTED
SWIPE FOR MORE IMAGES
$1,450,000 CAD
5 Sienna Avenue
Belleville, Ontario K8P 0E5
Canada
Belleville, Ontario K8P 0E5
Canada
8 bedrooms
4 baths
Residential For Sale, Multi Family
Sale price per sqm: 0
Remarks:
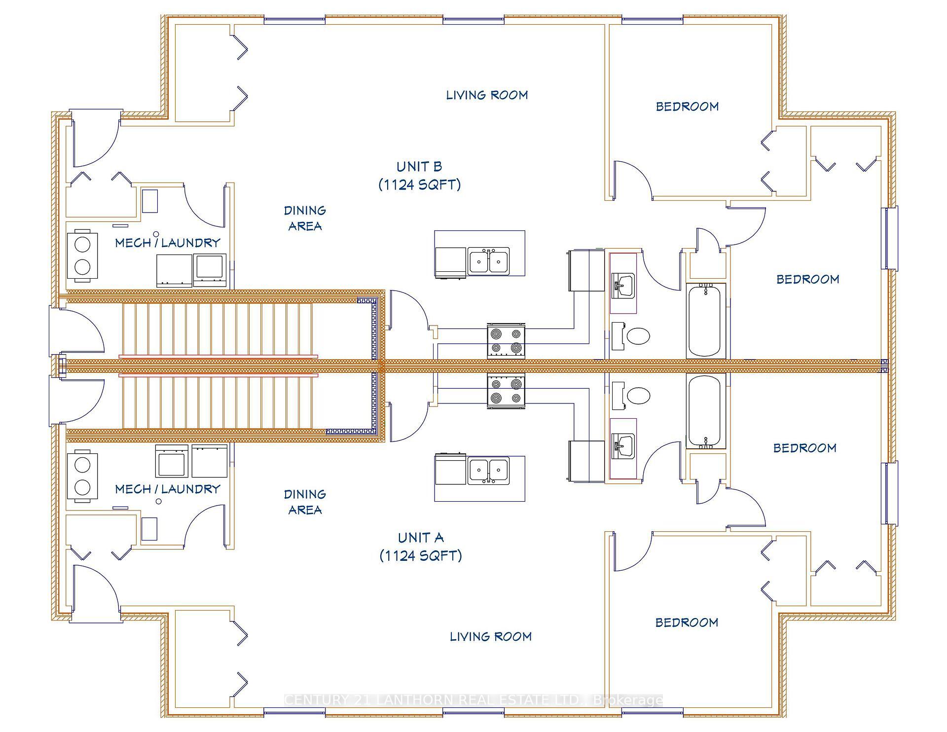
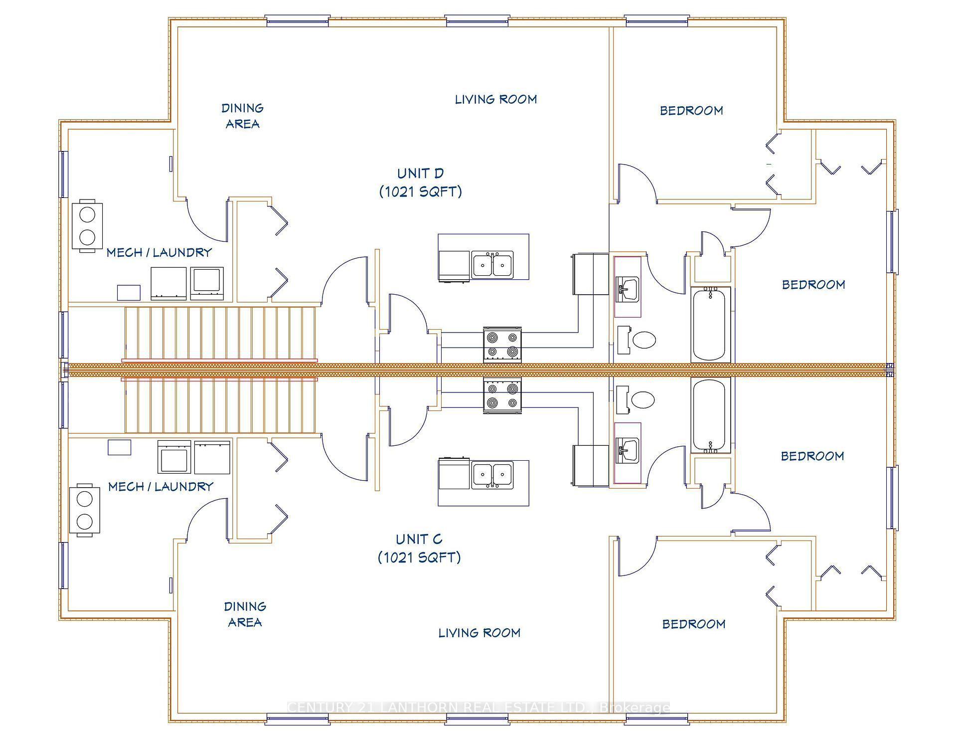
INVEST IN POTTER'S CREEK! 5 Sienna is your best opportunity to own a wonderful, purpose-built, brand-new 4-plex right at the entrance of Potter's Creek. This location is so convenient for military personnel to get to the base, healthcare workers to get to the hospital, and access for everyone to all of Quinte's best amenities. PLUS! Being right on the corner of Dundas St, there is a prime opportunity to lease advertising space at a premium in the future. Each individual unit feature around 1,100 sq. ft of total living space, complete with 2 bedrooms, 1 bathroom, kitchen, laundry, and their own mechanical rooms and equipment. All utilities are separated and market rent for each unit is $2,200+utilities/month conservatively - giving you $105,600 in annual income! BONUS! Canada's new Purpose Built Rental Housing (PBRH) Rebate allow the buyer to apply for a FULL HST rebate, which would reduce the purchase price after closing to $1,283,186 - WOW, what a savings! Construction is under way now.
Features:
- Location: Neighborhood: Belleville Ward
Location:
5 Sienna Avenue, Belleville, Ontario K8P 0E5, Canada
Listed By CENTURY 21 Lanthorn Real Estate Ltd. Brokerage
The Residential For Sale, Multi Family located at 5 Sienna Avenue, Belleville, Ontario K8P 0E5, Canada is currently for sale. 5 Sienna Avenue, Belleville, Ontario K8P 0E5, Canada is listed for $1,450,000 CAD. This property has 8 bedrooms, 4 bathrooms. If the property located at 5 Sienna Avenue, Belleville, Ontario K8P 0E5, Canada isn't what you're looking for, search Ontario Real Estate to see other Homes For Sale in Belleville.







