SWIPE FOR MORE IMAGES
£1,400 GBP
Swaythling Road
Southampton
United Kingdom
Southampton
United Kingdom
Remarks:
| *** AVAILABLE NOW *** | *** VIRTUAL TOUR LINBK ATTACHED *** | *** GROUND FLOOR *** | *** MASTER BEDROOM ENSUITE *** | *** ONE ALLOCATED PARKING SPACE FOR ONE CAR *** | *** EPC BAND: C *** | *** COUNCIL TAX BAND: B *** | *** UNFURNISHED *** |
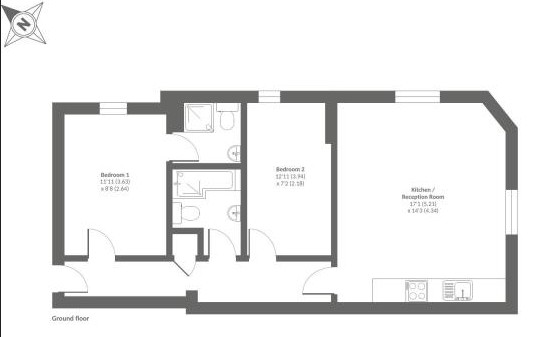
A modern two bedroom ground floor flat situated in West End area of Southampton, available to let. The property comprises: open plan lounge and kitchen, two good sized bedrooms, and one family bathroom. Further benefits include: master bedroom ensuite, double glazed windows, one allocated parking space and small private sitting area on the side of the flat.
Measurements:
KITCHEN/LOUNGE17'1 x 14'3 (5.21 x 4.34)BEDROOM ONE11'11 x 8'8 (3.63 x 2.64)BEDROOM TWO12'11 x 7'2 (3.94 x 2.18)
Please note: There are washing machine and dryer fitted in a cupboard and tenants can use it on a good faith basis and the landlord will not be responsible for replacing them should they break down during the tenancy.
Tenants pay all bills and council tax.
Disclaimer:
1: The measurements indicated are supplied for guidance only and as such must be considered incorrect however effort has been made to ensure correct measurement with minor error has been stated.
2: Interested parties are advised to recheck the measurements before committing to any expense.
3: No apparatus, equipment, fixtures, fittings or services has been tested and it is the buyers interests to check the working condition of any appliances.
A modern two bedroom ground floor flat situated in West End area of Southampton, available to let. The property comprises: open plan lounge and kitchen, two good sized bedrooms, and one family bathroom. Further benefits include: master bedroom ensuite, double glazed windows, one allocated parking space and small private sitting area on the side of the flat.
Measurements:
KITCHEN/LOUNGE17'1 x 14'3 (5.21 x 4.34)BEDROOM ONE11'11 x 8'8 (3.63 x 2.64)BEDROOM TWO12'11 x 7'2 (3.94 x 2.18)
Please note: There are washing machine and dryer fitted in a cupboard and tenants can use it on a good faith basis and the landlord will not be responsible for replacing them should they break down during the tenancy.
Tenants pay all bills and council tax.
Disclaimer:
1: The measurements indicated are supplied for guidance only and as such must be considered incorrect however effort has been made to ensure correct measurement with minor error has been stated.
2: Interested parties are advised to recheck the measurements before committing to any expense.
3: No apparatus, equipment, fixtures, fittings or services has been tested and it is the buyers interests to check the working condition of any appliances.
Features:
- Reference Number: R211229
Location:
Swaythling Road, Southampton, United Kingdom
Listed By Century 21 Southampton
The Residential For Rent located at Swaythling Road, Southampton, United Kingdom is currently for rent. Swaythling Road, Southampton, United Kingdom is listed for £1,400 GBP. If the property located at Swaythling Road, Southampton, United Kingdom isn't what you're looking for, search Southampton Real Estate to see other Homes For Lease in Southampton.









