SWIPE FOR MORE IMAGES
€420,000 EUR
76220 Gournay En Bray, Haute-Normandie
France
France
Sale price per sqm: 611.82
Remarks: [Translate *]
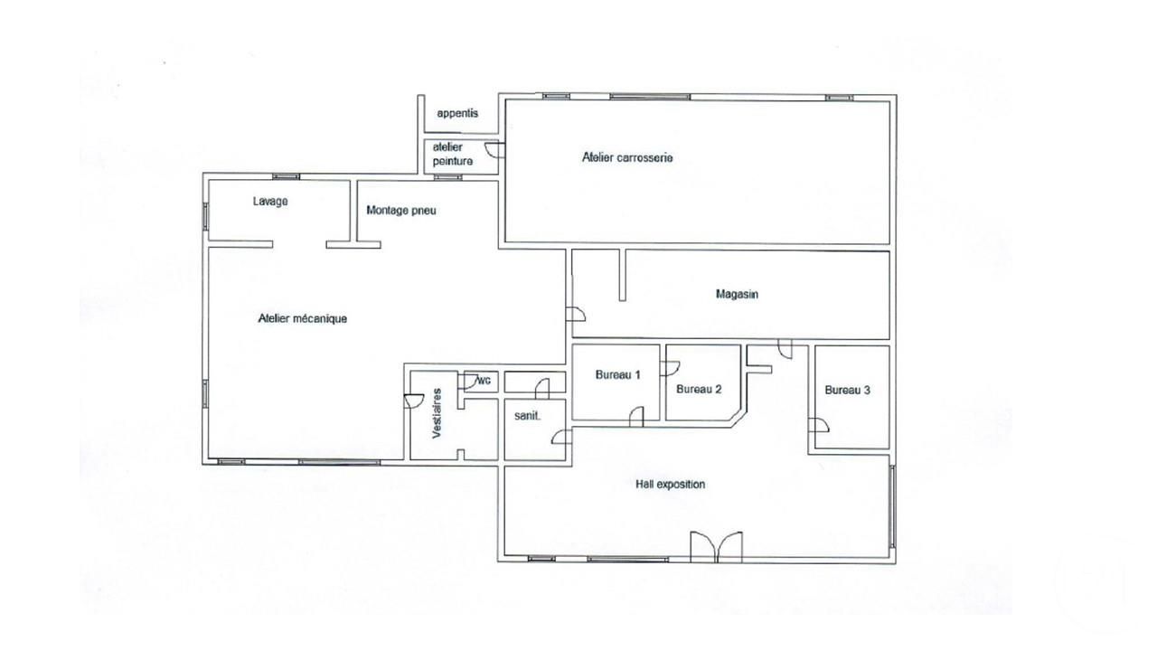
RARE !! À Vendre : Ce bâtiment exsitant et à usage actuel de Garage . Ce garage est en activité avec fort potentiel en Zone Industrielle sur axe avec beaucoup de passage. Ce local commercial à une surface d'environ 800 m², avec bureaux , showroom , archive, local pour stockage ou autre , nombreux boxes , grand local à usage d'entrepôt.. Le terrain d'environ 3500m2 est entièrement constructible en ZI et a 2 entrée camion/véhicule. Nous pouvons fournir plus d'information sur demande .
Opportunité exceptionnelle à saisir ! Ce garage, actuellement en activité, est situé dans une zone industrielle très fréquentée, offrant une excellente visibilité grâce à son emplacement sur une route passagère.
Le local, d'une superficie d'environ 800 m², se trouve sur un vaste terrain plat et clos de 3 500 m². Le bâtiment est en bon état général, avec une division possible pour des projets multiples. Vous avez également la possibilité de louer une partie des locaux à des artisans ou autres professionnels.
Points forts : possibilté Reprise de l'activité en cours avec tout le matériel inclus dans le prix de vente et sans supplément (sauf pour le stock de pièces détachées. Terrain entièrement clos et constructible, parfait pour l'expansion ou de nouveaux projets. Idéal pour une activité de garage ou tout autre projet commercial ou industriel
Potentiel d'investissement locatif attractif grâce à la possibilité de division et de location partielle
Ce bien représente une occasion unique pour un entrepreneur souhaitant développer une activité existante ou pour un investisseur à la recherche d'un actif à fort potentiel de rentabilité.
N'hésitez pas à nous contacter!!!!
Ce bien se situé sur le secteur de gisors / rouen / beauvais à environ 1h30 de paris / 1h d'amiens / 2 heures de lille. 1H de pontoise / cergy / argenteuil.
Opportunité exceptionnelle à saisir ! Ce garage, actuellement en activité, est situé dans une zone industrielle très fréquentée, offrant une excellente visibilité grâce à son emplacement sur une route passagère.
Le local, d'une superficie d'environ 800 m², se trouve sur un vaste terrain plat et clos de 3 500 m². Le bâtiment est en bon état général, avec une division possible pour des projets multiples. Vous avez également la possibilité de louer une partie des locaux à des artisans ou autres professionnels.
Points forts : possibilté Reprise de l'activité en cours avec tout le matériel inclus dans le prix de vente et sans supplément (sauf pour le stock de pièces détachées. Terrain entièrement clos et constructible, parfait pour l'expansion ou de nouveaux projets. Idéal pour une activité de garage ou tout autre projet commercial ou industriel
Potentiel d'investissement locatif attractif grâce à la possibilité de division et de location partielle
Ce bien représente une occasion unique pour un entrepreneur souhaitant développer une activité existante ou pour un investisseur à la recherche d'un actif à fort potentiel de rentabilité.
N'hésitez pas à nous contacter!!!!
Ce bien se situé sur le secteur de gisors / rouen / beauvais à environ 1h30 de paris / 1h d'amiens / 2 heures de lille. 1H de pontoise / cergy / argenteuil.
Features:
- Reference Number: 202_3427_2355
Location:
76220 Gournay En Bray, Haute-Normandie, France
Listed By CENTURY 21 Notre Dame
The Property located in 76220 Gournay En Bray, Haute-Normandie, France is currently for sale. This property is listed for €420,000 EUR. This property has 800 m2. If this property isn't what you're looking for, search Haute-Normandie Real Estate to see other in Gournay En Bray.








