SWIPE FOR MORE IMAGES
€329,000 EUR
92250 La Garenne Colombes, Île-de-France
France
France
528.8 sqft ::
49.13 m2
1 bedroom
1 bath
Residential For Sale, Apartment
Sale price per sqm: 7,803.99
Remarks: [Translate *]
La Garenne-Colombes, quartier Charlebourg / Place de Belgique.
Au cœur d'un quartier recherché proche de toutes commodités, bel appartement dans un immeuble de caractère et bien entretenu construit dans les années 1930 .
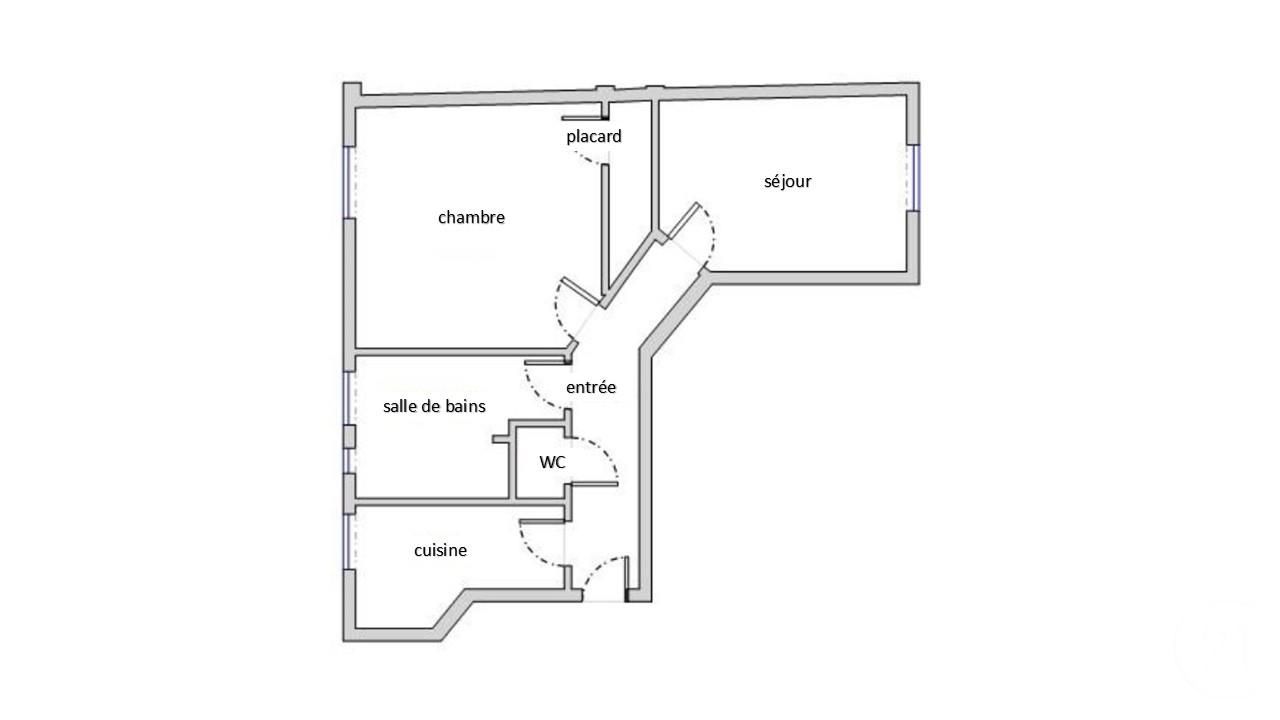
Situé au second étage avec ascenseur, il offre une entrée sur dégagement, un beau séjour lumineux exposé ouest, une chambre, une cuisine indépendante et des rangements.
Une cave complète le Bien.
Beau parquet et double-vitrages, salle de bains récente.
Chauffage collectif par chaudière gaz de 2024, eau chaude par ballon de 2024, électricité aux normes et étanchéité du toit réalisée en 2025.
Gare de La Garenne-Colombes à 6mn à pied pour accès à Paris St-Lazare en 11mns, lignes de bus (73/163/176/363/N24) et station de Tramway T2 à deux pas pour accès direct à La Défense et station Vélib au pied de l'immeuble.
Commerces de quartier, marché, supermarché, Hôtel de ville, parcs et toutes commodités à proximité.
Très belle situation pour cet appartement plein de charme, à visiter sans tarder!
Au cœur d'un quartier recherché proche de toutes commodités, bel appartement dans un immeuble de caractère et bien entretenu construit dans les années 1930 .
Situé au second étage avec ascenseur, il offre une entrée sur dégagement, un beau séjour lumineux exposé ouest, une chambre, une cuisine indépendante et des rangements.
Une cave complète le Bien.
Beau parquet et double-vitrages, salle de bains récente.
Chauffage collectif par chaudière gaz de 2024, eau chaude par ballon de 2024, électricité aux normes et étanchéité du toit réalisée en 2025.
Gare de La Garenne-Colombes à 6mn à pied pour accès à Paris St-Lazare en 11mns, lignes de bus (73/163/176/363/N24) et station de Tramway T2 à deux pas pour accès direct à La Défense et station Vélib au pied de l'immeuble.
Commerces de quartier, marché, supermarché, Hôtel de ville, parcs et toutes commodités à proximité.
Très belle situation pour cet appartement plein de charme, à visiter sans tarder!
Features:
- Rooms: 2
- Reference Number: 202_2152_32523
- Year Built: 1930
- Apartment is on level: 2
- Number of Levels: 5
- Number of Fireplaces: 0
- Security Features: Intercom, Access control
- Association/Community Features Description: Elevators
- Number of assigned or reserved parking spaces: 0
Location:
92250 La Garenne Colombes, Île-de-France, France
Listed By CENTURY 21 Beaurepaire
The Residential For Sale, Apartment located in 92250 La Garenne Colombes, Île-de-France, France is currently for sale. This property is listed for €329,000 EUR. This property has 1 bedroom, 1 bathroom and 49.13 m2. If this property isn't what you're looking for, search Île-de-France Real Estate to see other Homes For Sale in La Garenne Colombes.











