SWIPE FOR MORE IMAGES
€358,000 EUR
05000 Neffes, Provence-Alpes-Côte d'Azur
France
France
1,542.7 sqft ::
143.32 m2
4 bedrooms
Residential For Sale, Townhouse
Sale price per sqm: 2,911.01
Remarks: [Translate *]
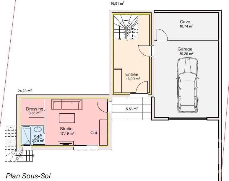
A vendre il vous est proposé une maison de type 5 d'environ 143m² habitables vendue hors d'eau hors d'air. Sur la commune de Neffes, cette résidence élevée d'un niveau propose au rez-de-chaussée un studio ainsi qu'un garage de plus de 30m² ainsi qu'une cave. à l'étage c'est un plateau de plus de 105m² qui supposent un agence de type 4 avec un grand séjour salon et cuisine. cette maison moderne sur une parcelle de 704m² sera terminée d'extérieur avec ses façades, menuiseries et bien évidement couverture, mais aussi avec les accès et les abords. Ne vous resterons que le second œuvre pour les personnes avides de travaux ou les professionnels du métier. La construction est réalisée au rez de chaussée en béton banché, et à l'étage en briques afin de répondre bien évidement aux normes RE2020. Le secteur est calme, et de la vue se propose du haut de la terrasse et sur le pourtour arrière de la maison. Nous restons à votre disposition afin de répondre à toutes vos questions techniques.
Features:
- Rooms: 5
- Reference Number: 202_3765_7124
- Number of Fireplaces: 0
- Number of assigned or reserved parking spaces: 1
Location:
05000 Neffes, Provence-Alpes-Côte d'Azur, France
Listed By CENTURY 21 Habitat
The Residential For Sale, Townhouse located in 05000 Neffes, Provence-Alpes-Côte d'Azur, France is currently for sale. This property is listed for €358,000 EUR. This property has 4 bedrooms and 143.32 m2. If this property isn't what you're looking for, search Provence-Alpes-Côte d'Azur Real Estate to see other Homes For Sale in Neffes.









