SWIPE FOR MORE IMAGES
$2,700,000 MXN
Xolotl 33
Miguel Hidalgo, Tlaxpana, Ciudad De México 11370
Mexico
Miguel Hidalgo, Tlaxpana, Ciudad De México 11370
Mexico
678.1 sqft ::
63 m2
Residential For Sale, Apartment
Land size: 678 sqft ::
63 m2
Sale price per sqm: 2,350.5
Remarks: [Translate *]
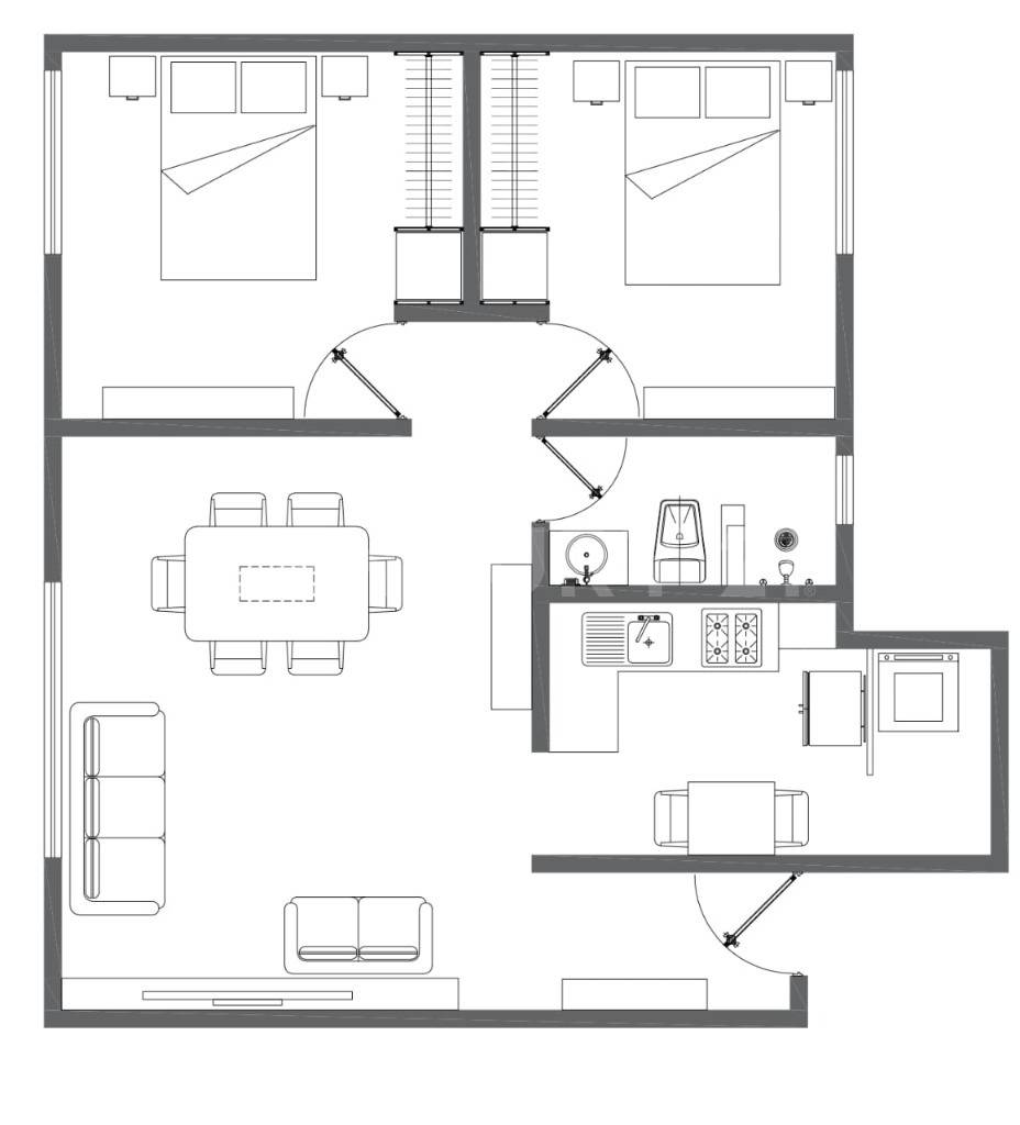
Departamento con excelente ubicación, Con 2 recámaras, 1 bano completo, cocina integral, área de lavado.
Decoración y muebles no están incluidos en el precio, son de manera ilustrativa.
Además de la iluminación normal, cuenta iluminación indirecta a través de plafones y luces led haciendo los espacios más cálidos y funcionales, tiene un pequeno mueble de cantina empotrado, nichos en bano y regadera que favorecen el aprovechamiento del área, cocina integral en excelente estado, dentro de la cocina cabe una pequena mesa como desayunador.
Características:
Construcción 63 m2
Equipamiento:
Recamaras con closet, tinaco, cisterna, gas natural
Inmueble sin gravamen
Formas de pago:
Se aceptan pagos con recursos propios, créditos privado y crédito gubernamental (la aprobación de los créditos está sujeto a las políticas de cada institución).
Documentación:
Cancelación de la Hipoteca
Boleta predial
Boleta agua
Servicios en la zona:
Metro Normal a 250 metros, Galerías Plaza de las Estrellas a 950 metros.
Escuelas primaria, secundaria, preparatoria, universidades, parques, centros comerciales, deportivos, hoteles, supermercados, hospitales, deportivos. Carmen Chávez Suárez 55 3478 6875 (ref:595967)
Decoración y muebles no están incluidos en el precio, son de manera ilustrativa.
Además de la iluminación normal, cuenta iluminación indirecta a través de plafones y luces led haciendo los espacios más cálidos y funcionales, tiene un pequeno mueble de cantina empotrado, nichos en bano y regadera que favorecen el aprovechamiento del área, cocina integral en excelente estado, dentro de la cocina cabe una pequena mesa como desayunador.
Características:
Construcción 63 m2
Equipamiento:
Recamaras con closet, tinaco, cisterna, gas natural
Inmueble sin gravamen
Formas de pago:
Se aceptan pagos con recursos propios, créditos privado y crédito gubernamental (la aprobación de los créditos está sujeto a las políticas de cada institución).
Documentación:
Cancelación de la Hipoteca
Boleta predial
Boleta agua
Servicios en la zona:
Metro Normal a 250 metros, Galerías Plaza de las Estrellas a 950 metros.
Escuelas primaria, secundaria, preparatoria, universidades, parques, centros comerciales, deportivos, hoteles, supermercados, hospitales, deportivos. Carmen Chávez Suárez 55 3478 6875 (ref:595967)
Features:
- Dining Room
- Dining Room
- Reference Number: 1
- Year Built: 1995
- Floor: 2
- Condition: Good
- Security Features: Video Cameras
- Utilities: Water, Electric
- Number of parking spaces: 1
Location:
Xolotl 33, Miguel Hidalgo, Tlaxpana, Ciudad De México 11370, Mexico
Listed By CENTURY 21 Herrera & Asociados
The Residential For Sale, Apartment located at Xolotl 33, Miguel Hidalgo, Tlaxpana, Ciudad De México 11370, Mexico is currently for sale. Xolotl 33, Miguel Hidalgo, Tlaxpana, Ciudad De México 11370, Mexico is listed for $2,700,000 MXN. This property has 63 m2. If the property located at Xolotl 33, Miguel Hidalgo, Tlaxpana, Ciudad De México 11370, Mexico isn't what you're looking for, search Ciudad De México Real Estate to see other Homes For Sale in Miguel Hidalgo.










