NEWLY LISTED
SWIPE FOR MORE IMAGES
$130,000 USD
Olimpo y Shaw
Pinamar, Barrio Cerrado Pinamar Norte, Buenos Aires Costa Atlántica 7167
Argentina
Pinamar, Barrio Cerrado Pinamar Norte, Buenos Aires Costa Atlántica 7167
Argentina
11,797 sqft ::
1,096 m2
Land for sale, Ranch
Sale price per sqm: 118.61
Remarks: [Translate *]
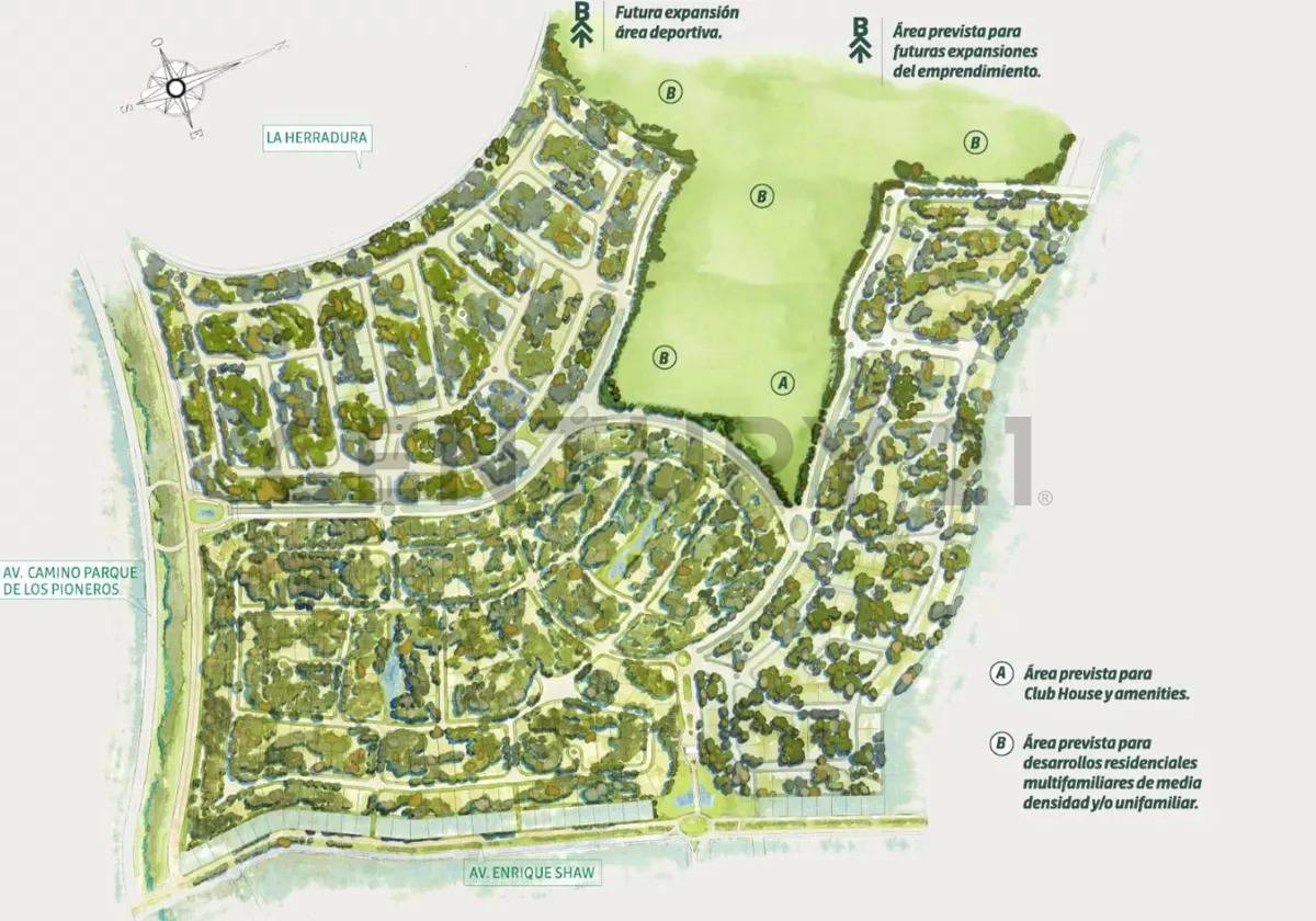
Viví rodeado de naturaleza en BOSQUES, un mega emprendimiento desarrollado por PINAMAR S.A., la empresa creadora de la ciudad y responsable de proyectos icónicos
BOSQUES te invita a disfrutar de un estilo de vida único, en armonía con el entorno natural y con todas las comodidades para vos y tu familia.
Amenities:
Primera Etapa:
*Restaurante y Bar
*Sala de estar / Co-working
*Pileta exterior con solárium y zona de camastros
*Parador y bar de playa con espacio juvenil
*Gimnasio y vestuarios
*Área de juegos para chicos
*Espacios deportivos: tenis y pádel
Etapas posteriores:
*Spa
*Pileta interior y exterior
*Gimnasio ampliado
*Canchas de tenis, fútbol y multideporte
Un entorno seguro, moderno y sustentable, pensado para disfrutar todo el ano.
Las medidas son aproximadas y se confirmarán en el título de propiedad respectivo. Mariela Nervi Matrícula Col. 1484, Todas las propiedades que figuran en esta publicación se encuentran a cargo del profesional matriculado Mariela Nervi, Matrícula Col. 1484 por lo tanto la intermediación y la conclusión de las operaciones serán llevadas exclusivamente por él. En cumplimiento de la Ley 10.973 de la Provincia de Buenos Aires, Ley Nacional 25.028, Ley Nacional 20.266, Ley 22.802 de Lealtad Comercial, Ley 24.240 de Defensa al Consumidor, las normas del Código Civil y Comercial de la Nación y Constitucionales, los asesores o agentes NO ejercen el corretaje inmobiliario. Todas las operaciones inmobiliarias son objeto de intermediación y conclusión por parte del martillero y corredor colegiado, cuyos datos se exhiben en el nombre de la inmobiliaria.
Ley 5115: EXCEPTO que en la descripción de la propiedad se indique lo contrario, el edificio puede no contar con rampa para personas con movilidad reducida, y no ser Accesible para personas con discapacidades físicas.
Venta sujeta a la obtención del COTI por parte del propietario. Las medidas son aproximadas, las reales surgen del título o plano de mensura.
Las reservas se toman exclusivamente en la inmobiliaria con el matriculado Col. 1484 (ref:296722)
BOSQUES te invita a disfrutar de un estilo de vida único, en armonía con el entorno natural y con todas las comodidades para vos y tu familia.
Amenities:
Primera Etapa:
*Restaurante y Bar
*Sala de estar / Co-working
*Pileta exterior con solárium y zona de camastros
*Parador y bar de playa con espacio juvenil
*Gimnasio y vestuarios
*Área de juegos para chicos
*Espacios deportivos: tenis y pádel
Etapas posteriores:
*Spa
*Pileta interior y exterior
*Gimnasio ampliado
*Canchas de tenis, fútbol y multideporte
Un entorno seguro, moderno y sustentable, pensado para disfrutar todo el ano.
Las medidas son aproximadas y se confirmarán en el título de propiedad respectivo. Mariela Nervi Matrícula Col. 1484, Todas las propiedades que figuran en esta publicación se encuentran a cargo del profesional matriculado Mariela Nervi, Matrícula Col. 1484 por lo tanto la intermediación y la conclusión de las operaciones serán llevadas exclusivamente por él. En cumplimiento de la Ley 10.973 de la Provincia de Buenos Aires, Ley Nacional 25.028, Ley Nacional 20.266, Ley 22.802 de Lealtad Comercial, Ley 24.240 de Defensa al Consumidor, las normas del Código Civil y Comercial de la Nación y Constitucionales, los asesores o agentes NO ejercen el corretaje inmobiliario. Todas las operaciones inmobiliarias son objeto de intermediación y conclusión por parte del martillero y corredor colegiado, cuyos datos se exhiben en el nombre de la inmobiliaria.
Ley 5115: EXCEPTO que en la descripción de la propiedad se indique lo contrario, el edificio puede no contar con rampa para personas con movilidad reducida, y no ser Accesible para personas con discapacidades físicas.
Venta sujeta a la obtención del COTI por parte del propietario. Las medidas son aproximadas, las reales surgen del título o plano de mensura.
Las reservas se toman exclusivamente en la inmobiliaria con el matriculado Col. 1484 (ref:296722)
Location:
Olimpo y Shaw , Pinamar, Barrio Cerrado Pinamar Norte, Buenos Aires Costa Atlántica 7167, Argentina
Listed By CENTURY 21 Alianza Urbana S.A. (Pinamar)
The Land for sale, Ranch located at Olimpo y Shaw , Pinamar, Barrio Cerrado Pinamar Norte, Buenos Aires Costa Atlántica 7167, Argentina is currently for sale. Olimpo y Shaw , Pinamar, Barrio Cerrado Pinamar Norte, Buenos Aires Costa Atlántica 7167, Argentina is listed for $130,000 USD. If the property located at Olimpo y Shaw , Pinamar, Barrio Cerrado Pinamar Norte, Buenos Aires Costa Atlántica 7167, Argentina isn't what you're looking for, search Buenos Aires Costa Atlántica Real Estate to see other Land For Sale in Pinamar.







