SWIPE FOR MORE IMAGES
$90,000 USD
Los Ñires 463
Villa La Angostura, Neuquén 8407
Argentina
Villa La Angostura, Neuquén 8407
Argentina
10,947 sqft ::
1,017 m2
Land for sale, Ranch
Sale price per sqm: 88.5
Remarks: [Translate *]
UF 4 - U$S 90.000.-
Lote ubicado en barrio Lomas del Correntoso , zona residencial de Villa la Angostura con acceso por calle Nires.
Caracterizado por su tranquilidad y conexión con la naturaleza, cuenta con gran cantidad de espacios verdes y vegetación autóctona de la region como Coihues, Cipreses y Radales.
Cercano al Lago Nahuel Huapi y Lago Correntoso, formando así un punto turístico estratégico de privilegio.
Superficie plana y boscosa, con planos aprobados para la construcción de una vivienda de 50m2 computables. Con posibilidad de ampliación.
Zonificación según código urbanístico: BANDA COSTERA AREA INTERIOR - Zc - EPULAFQUEN
FOS: 15%
FOT: 30%
Forma para de un lote madre de 9.900m2, subdivido en 10 UF.
Servicios:
- Agua corriente.
- Gas natural (sujeto a requerimientos y disponibilidad de Camuzzi Gas del Sur).
- Luz (en proceso de repotenciación a cargo del vendedor).
FORMAS DE PAGO
- Contado.
- Consultar posibilidad de financiamiento.
DISTANCIAS
- Al Centro comercial de Villa La Angostura: 3 km.
- Al Lago Nahuel Huapi y Lago Correntoso: 700mts.
- Al acceso al Cerro Bayo Centro de Ski Boutique Villa La Angostura:12 km (25 minutos en auto).
- Al Aeropuerto Internacional de Bariloche Teniente. Luis Candelaria : 80km (1 hora en auto).
- Al Paso Internacional a Chile Cardenal Samoré : 25km (30 min en auto). Fernando Caballero Matrícula CMYCPN 326 Teléfonos de contacto (294) 434-7196
Todas las propiedades que figuran en esta publicación se encuentran a cargo del profesional matriculado Fernando Caballero, Matrícula CMYCPN 326 por lo tanto la intermediación y la conclusión de las operaciones serán llevadas exclusivamente por él. En cumplimiento de la Ley 10.973 de la Provincia de Buenos Aires, Ley Nacional 25.028, Ley Nacional 20.266, Ley 22.802 de Lealtad Comercial, Ley 24.240 de Defensa al Consumidor, las normas del Código Civil y Comercial de la Nación y Constitucionales, los asesores o agentes NO ejercen el corretaje inmobiliario. Todas las operaciones inmobiliarias son objeto de intermediación y conclusión por parte del martillero y corredor colegiado, cuyos datos se exhiben en el nombre de la inmobiliaria.
Ley 5115: EXCEPTO que en la descripción de la propiedad se indique lo contrario, el edificio puede no contar con rampa para personas con movilidad reducida, y no ser Accesible para personas con discapacidades físicas.
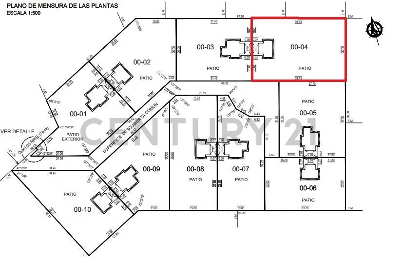
Venta sujeta a la obtención del COTI por parte del propietario. Las medidas son aproximadas, las reales surgen del título o plano de mensura.
Las reservas se toman exclusivamente en la inmobiliaria con el matriculado CMYCPN 326 (ref:272486)
Lote ubicado en barrio Lomas del Correntoso , zona residencial de Villa la Angostura con acceso por calle Nires.
Caracterizado por su tranquilidad y conexión con la naturaleza, cuenta con gran cantidad de espacios verdes y vegetación autóctona de la region como Coihues, Cipreses y Radales.
Cercano al Lago Nahuel Huapi y Lago Correntoso, formando así un punto turístico estratégico de privilegio.
Superficie plana y boscosa, con planos aprobados para la construcción de una vivienda de 50m2 computables. Con posibilidad de ampliación.
Zonificación según código urbanístico: BANDA COSTERA AREA INTERIOR - Zc - EPULAFQUEN
FOS: 15%
FOT: 30%
Forma para de un lote madre de 9.900m2, subdivido en 10 UF.
Servicios:
- Agua corriente.
- Gas natural (sujeto a requerimientos y disponibilidad de Camuzzi Gas del Sur).
- Luz (en proceso de repotenciación a cargo del vendedor).
FORMAS DE PAGO
- Contado.
- Consultar posibilidad de financiamiento.
DISTANCIAS
- Al Centro comercial de Villa La Angostura: 3 km.
- Al Lago Nahuel Huapi y Lago Correntoso: 700mts.
- Al acceso al Cerro Bayo Centro de Ski Boutique Villa La Angostura:12 km (25 minutos en auto).
- Al Aeropuerto Internacional de Bariloche Teniente. Luis Candelaria : 80km (1 hora en auto).
- Al Paso Internacional a Chile Cardenal Samoré : 25km (30 min en auto). Fernando Caballero Matrícula CMYCPN 326 Teléfonos de contacto (294) 434-7196
Todas las propiedades que figuran en esta publicación se encuentran a cargo del profesional matriculado Fernando Caballero, Matrícula CMYCPN 326 por lo tanto la intermediación y la conclusión de las operaciones serán llevadas exclusivamente por él. En cumplimiento de la Ley 10.973 de la Provincia de Buenos Aires, Ley Nacional 25.028, Ley Nacional 20.266, Ley 22.802 de Lealtad Comercial, Ley 24.240 de Defensa al Consumidor, las normas del Código Civil y Comercial de la Nación y Constitucionales, los asesores o agentes NO ejercen el corretaje inmobiliario. Todas las operaciones inmobiliarias son objeto de intermediación y conclusión por parte del martillero y corredor colegiado, cuyos datos se exhiben en el nombre de la inmobiliaria.
Ley 5115: EXCEPTO que en la descripción de la propiedad se indique lo contrario, el edificio puede no contar con rampa para personas con movilidad reducida, y no ser Accesible para personas con discapacidades físicas.
Venta sujeta a la obtención del COTI por parte del propietario. Las medidas son aproximadas, las reales surgen del título o plano de mensura.
Las reservas se toman exclusivamente en la inmobiliaria con el matriculado CMYCPN 326 (ref:272486)
Features:
- Lot Frontage: 39
Location:
Los Ñires 463, Villa La Angostura, Neuquén 8407, Argentina
Listed By CENTURY 21 Caballero
The Land for sale, Ranch located at Los Ñires 463, Villa La Angostura, Neuquén 8407, Argentina is currently for sale. Los Ñires 463, Villa La Angostura, Neuquén 8407, Argentina is listed for $90,000 USD. If the property located at Los Ñires 463, Villa La Angostura, Neuquén 8407, Argentina isn't what you're looking for, search Neuquén Real Estate to see other Land For Sale in Villa La Angostura.













