SWIPE FOR MORE IMAGES
$80,000 USD
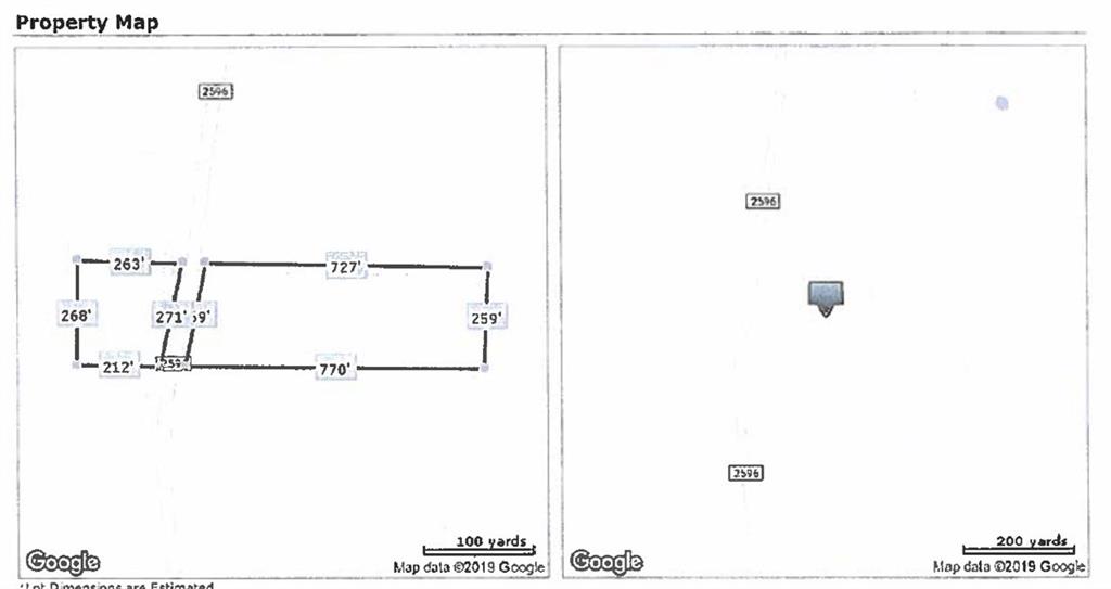
680 County Road 2596
Naples, Texas 75568
USA
Naples, Texas 75568
USA
125.972 m2 ::
1,356 sqft
3 bedrooms
1 full bath
Residential For Sale, Single Family Detached
Sale price per sqm: 635.04
Remarks:
Large Mature laden trees on five(5) acres with spring fed creek. Close to hunting and fishing and State Park
Features:
- Year Built: 1964
Location:
680 County Road 2596, Naples, Texas 75568, USA
Listed By CENTURY 21 Judge Fite Company
The Residential For Sale, Single Family Detached located at 680 County Road 2596, Naples, Texas 75568, USA is currently for sale. 680 County Road 2596, Naples, Texas 75568, USA is listed for $80,000 USD. This property has 3 bedrooms, 1 full bath and 1,356 sqft. If the property located at 680 County Road 2596, Naples, Texas 75568, USA isn't what you're looking for, search Texas Real Estate to see other Homes For Sale in Naples.