SWIPE FOR MORE IMAGES
$449,000 CAD
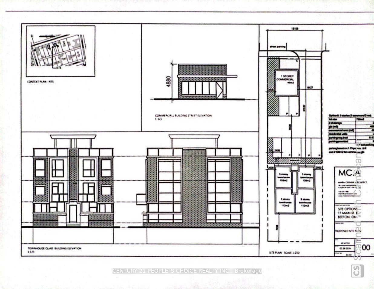
17 Main Street E
New Tecumseth, Ontario L0G 1A0
Canada
New Tecumseth, Ontario L0G 1A0
Canada
Land for sale, Vacant Land
Sale price per sqm: 0
Remarks:
(under power of sale)Nestled amidst a main artery lies a vacant lot, a canvas awaiting the strokes of architectural innovation. This prime piece of real estate spans a generous expanse, offering a tantalizing opportunity for a visionary entrepreneur or developer. At the forefront of this blank slate stands the promise of commerce, where a sleek and modern commercial unit can rise, its facade beckoning with possibilities. With ample space to showcase products or services, this commercial frontage holds the key to captivating the attention of passersby and attracting a steady stream of clientele. Yet, beyond the realm of commerce, lies a quieter enclave awaiting transformation. Towards the rear of the lot, a sanctuary of residential bliss emerges, offering a harmonious blend of urban convenience and suburban tranquility. Here, envisioned are four distinct residential units, each crafted with meticulous attention to detail and designed to epitomize modern comfort and luxury living. Pre-consult meeting is scheduled with the city Furthermore hundreds of homes are being built in the surrounding area, providing clientele for the commercial business. As the sun sets on the horizon, casting a golden hue upon the vacant lot, it becomes a beacon of promise and potential, a testament to the boundless opportunities that await those with the vision to seize them. In the heart of the city, amidst the rhythm of urban life, this vacant lot stands as a testament to the enduring spirit of innovation and transformation. It is not merely a piece of land but a canvas awaiting the strokes of architectural genius, ready to shape the landscape of tomorrow.
Features:
- Location: Neighborhood: Beeton
Location:
17 Main Street E, New Tecumseth, Ontario L0G 1A0, Canada
Listed By CENTURY 21 People's Choice Realty Inc. Brokerage
The Land for sale, Vacant Land located at 17 Main Street E, New Tecumseth, Ontario L0G 1A0, Canada is currently for sale. 17 Main Street E, New Tecumseth, Ontario L0G 1A0, Canada is listed for $449,000 CAD. If the property located at 17 Main Street E, New Tecumseth, Ontario L0G 1A0, Canada isn't what you're looking for, search Ontario Real Estate to see other Land For Sale in New Tecumseth.

